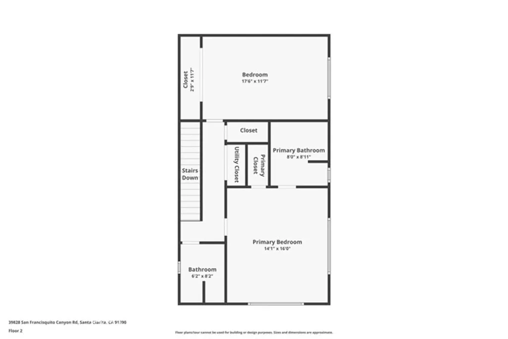
GREEN VALLEY GEM! Discover the potential in this spacious tri-level home featuring 4 bedrooms, 2.5 bathrooms, and an attached 2-car garage-all nestled on nearly half an acre of land. Step inside to hardwood floors that grace the main level, including the living room, kitchen, dining area and entryway. The bright living room features a brick fireplace and flows into the dining area with plantation shutters and a ceiling fan. The spacious kitchen offers tile countertops, oak cabinetry, recessed lighting, a breakfast bar, and a built-in beverage fridge-ideal for entertaining. A separate laundry/utility area with upper cabinets and a tiled folding station is conveniently located just off the kitchen. The lower level offers a large family/bonus room with tile floors, a cozy fireplace, garage access, and plenty of space for recreation or a home office. Also on the main level are two guest bedrooms and access to a private deck off of one of the bedrooms. Upstairs, the primary suite boasts plantation shutters, a ceiling fan, and a large private bath with a tiled tub/shower combo. A spacious secondary bedroom and ¾ guest bath complete the upper level. The attached garage is equipped with a newer insulated quiet-close automatic garage door, built-in storage, and even a half bath. For extr

Listing Tools (detailViewNewGen)

Property Details of 39828 San Francisquito Canyon Road

Property Details

Interior Features

Exterior Features

Utilities and Appliances

Community

Other Details

Map Location

Listed by Teri Gordon of Teri Gordon Real Estate

Bay East (c)2025, CCAR (c)2025. bridgeMLS (c)2025. Information Deemed Reliable But Not Guaranteed. This information is being provided by the Bay East MLS, or CCAR MLS, or bridgeMLS. All data, including all measurements and calculations of area, is obtained from various sources and has not been, and will not be, verified by broker or MLS. All information should be independently reviewed and verified for accuracy. Properties may or may not be listed by the office/agent presenting the information.

Hi there! How can we help you?

Contact us using the form below or give us a call.

Send Us A Message:

I agree to receive marketing, customer service calls, and text messages from Nancy Reichert. To opt out, you can reply 'stop' at any time or click the unsubscribe link in the emails. Consent is not a condition of purchase. Msg/data rates may apply. Msg frequency varies. Privacy Policy.

Do not fill in this field:

This site is protected by reCAPTCHA and the Google Privacy Policy and Terms of Service apply.